How we’re helping more people enjoy river adventures
Have your say on the draft all abilities pontoon design for Charles Clarke Park between October 14 and November 11, 2024.

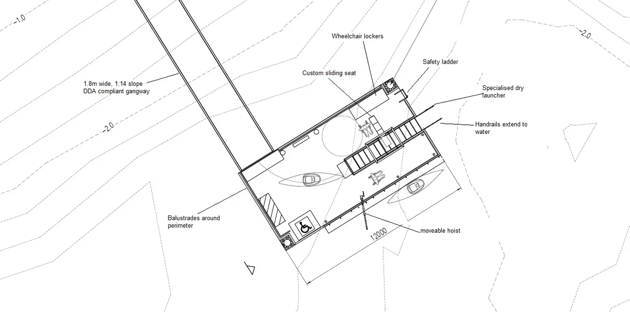
AI generated image of a pontoon with a wheel chair, kayak and paddle.
Plans are underway for a new pontoon at a popular Mooloolaba Park, so people of all abilities can access and enjoy paddling on the beautiful Mooloolah River kayak trail.
Our community is invited to have your say on the draft all abilities pontoon design for Charles Clarke Park at haveyoursay.sunshinecoast.qld.gov.au between October 14 and November 11, 2024.
Our goal is for the final design to allow people of all abilities, including those using wheelchairs and mobility aids, to transition into their non-motorised craft unassisted or with the help of their carer.
Draft pontoon design
The draft pontoon design aims to be compliant with the Disability Discrimination Act (DDA) and Australian Standards for access and mobility.
Carparking and facilities in the park would also be upgraded to be DDA compliant.
The project includes a new two-metre-wide pathway from the accessible carparks leading to the large pontoon.
Once on the pontoon, kayaks would be placed in a specialised launcher. The launcher would incorporate design elements such as slide stops to allow people with a range of different abilities to manually enter and exit the launcher.
A tiered seat would allow transition from wheelchair sitting height to watercraft level. This tiered seat is planned to include an extendable sliding bench that would allow seated access over the launcher for users to slip into the kayak easily.
There would also be a lockable wheelchair and kayak roller storage area on the pontoon.

Community Portfolio Councillor David Law Cr David Law said Council was committed to ensuring facilities met the community’s needs right across the Sunshine Coast.
“This will be a specialised pontoon for non-motorised craft,” Cr Law said.
“We need to improve access to the Mooloolah River for people of all abilities, so more people can enjoy an adventure on our magnificent waterways.
“As far as we are aware, this structure is the first of its kind in South East Queensland – and possibly even Australia.
“Other structures researched were found to either have DDA compliant access to the pontoon but no all-ability access to the water or no DDA complaint access to the pontoon but all abilities access to the water.
“This project aims to combine these attributes into a holistic facility that can be enjoyed by all.”

Councillor Joe Natoli said here on the Sunshine Coast we’re connecting and engaging with our communities to build a better future for everyone.
“Charles Clarke Park has been chosen as the first location to receive a specialist pontoon, following its recent upgrade,” Cr Natoli said.
“There are plans to build more specialised pontoons across the Sunshine Coast, however Mooloolaba has been chosen as the first spot as it is central to the Sunshine Coast.
“It already has parking, amenities and facilities to support an all-ability access – or has the potential to be upgraded to meet these needs and new DDA standards.
“It has reasonably close access to a large carpark and flat grades ideal for constructing compliant lead in pathways to the pontoon.
“And it offers great access to the Mooloolah River kayak trail and Pacific Ocean.”
Feedback so far
Council has sought initial feedback on the design of the pontoon from representatives of people with lived experience of disability. The feedback shared with Council was positive and showed support for the proposed pontoon at this location.
Other feedback also recommended minor changes to the layout for better wheelchair articulation, minor changes to the proposed parking and minor changes to the proposed lead in pathway.
It highlighted the types of craft which may get used here and suggested ways carers or a local onsite business may assist those with higher needs to access the water.
There were also recommendations for several active and passive safety systems which could be incorporated.
The facility is aimed at accommodating non-motorised watercraft.
A separate facility at Penny Lane on the east side of the wharf is available for motorised watercraft and fishing activities.
Please have your say via the survey at haveyoursay.sunshinecoast.qld.gov.au between October 14 and November 11, 2024.


